Bodrum Merkezde Devren Kiralık Diş Polikliniği | 500 m² – MRT Group
Bodrum Merkezde Devren Kiralık Diş Polikliniği | 500 m² – MRT Group
Description
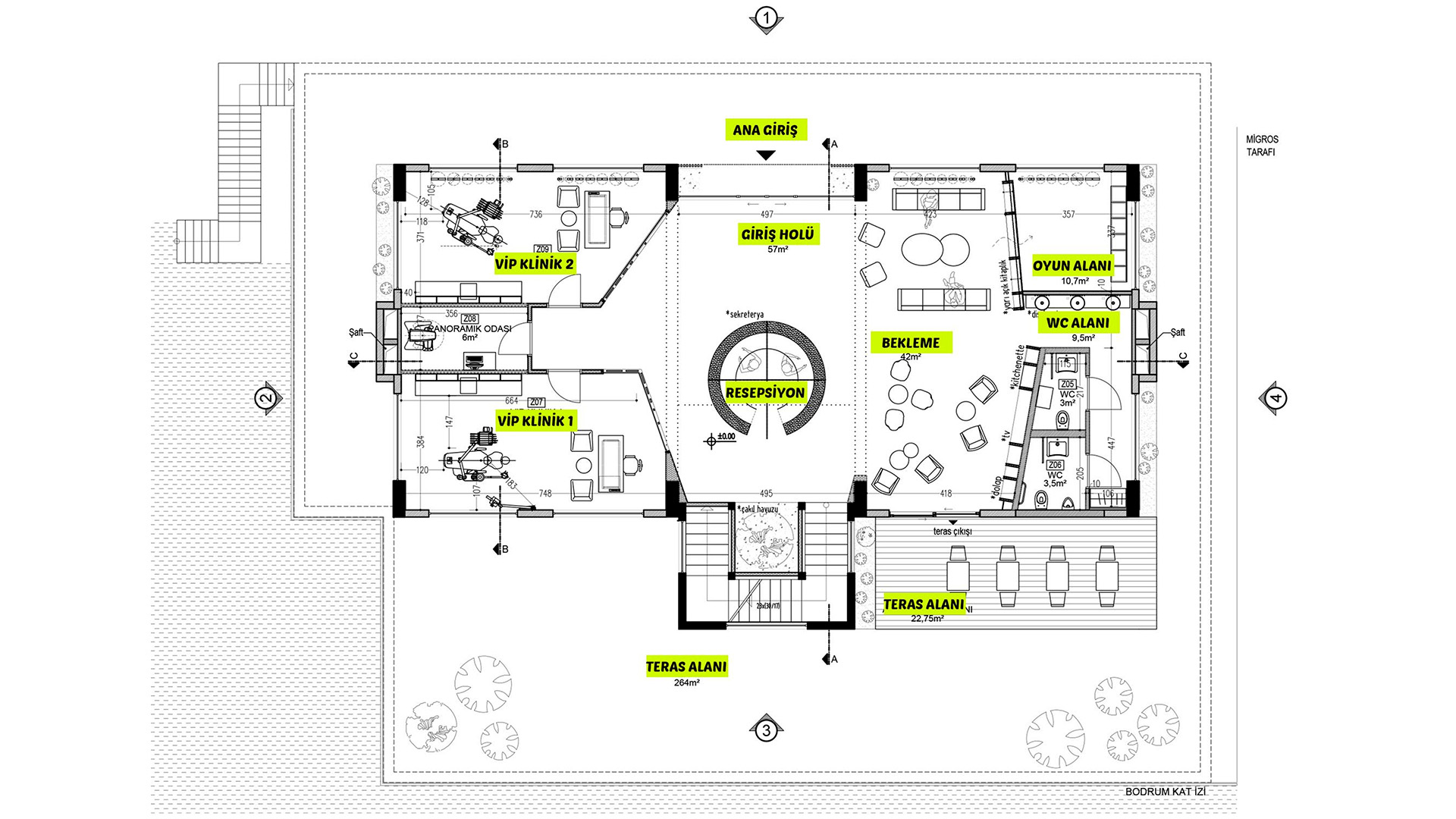
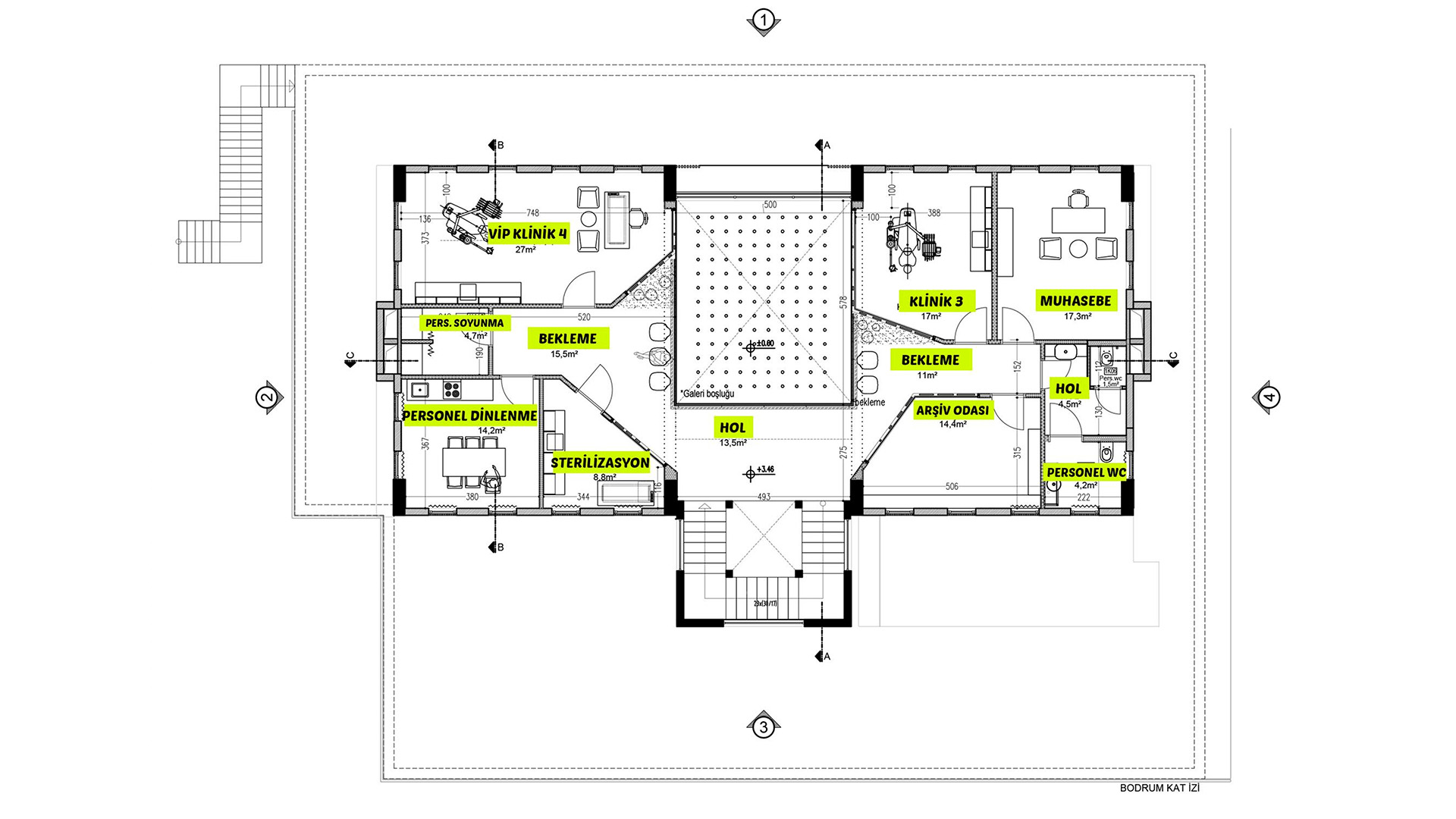
Bodrum’un merkezi ve yüksek yaya trafiğine sahip lokasyonlarından birinde yer alan, 500 m² kapalı alana sahip, 4 tedavi üniteli modern diş polikliniği devren kiralıktır.
Klinik, güncel mevzuata uygun şekilde projelendirilmiş olup aktif ve faal olarak hizmet vermektedir. Hasta sirkülasyonu bulunan poliklinik, modern altyapısı ve işlevsel iç mekân planlamasıyla hekimlerin doğrudan faaliyete devam edebileceği niteliktedir.







